Radiant Floor Heating Installation Services
Industry Leading Customer Support Services for Spokane Area Customers
Warmzone combines its vast product offering with industry leading customer support services. We understand that choosing to invest in radiant heat is a significant decision for Spokane residents, so we want to provide all the information and support services necessary for you to move forward with confidence.
Some homeowners make the mistake of shopping out systems and simply
settling on the least expensive option. While Warmzone offers some of the best prices
around, this should not be the deciding factor for those considering radiant heat.
One must also explore different product options as well as compare the services that
are included with the floor heating system. Certainly, choosing the right floor
heating system is important, but that’s only a small step toward reaching your end
goal.
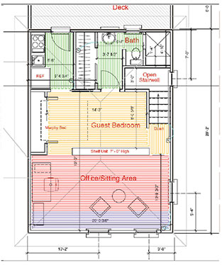
Proper installation of a radiant heat system is the single most important aspect of having a system that you can be happy with for years to come. With that in mind, every self-respecting radiant heat expert will tell you that prior to the installation you’ll need to have a complete, professional system design in hand. The detailed drawing should include the layout of the heating element and components (i.e., sensor, thermostat), as well as all the technical and electrical information. This is the road map for your electrician and installer, and is the first step toward ensuring proper installation of the system.
Warmzone has a professional design team that does nothing but produce these layouts for customers. This way our customers can benefit by utilizing our decades of experience to ensure that their system is designed for optimum performance and efficiency.
In addition to providing comprehensive system design and layout,
Warmzone also provides free installation training. Whether your installer has
experience with radiant heat or not, he/she can sign up and take a personal
installation training course. Every aspect of your installation will be covered by
the instructor. The training usually takes about an hour, but installers can stop
the instructor and ask questions at any time. This is another valuable step to help
ensure that the system is installed correctly.
Finally, Warmzone also offers technical support during the installation itself. Even after installers complete the training course, a question still may arise during the install. That’s why we stand beside your installer throughout the process, offering assistance at any time should they run into any unforeseen issues. If he/she has a problem they can simply call our dedicated installation support staff and we’ll be happy to walk them through the issue at hand. We are committed and determined to provide the best customer services in the industry.
When you work with Warmzone, you not only have access to the best floor heating systems on the market and competitive pricing, you enlist the services of a team of radiant heat experts. That experience can be a valuable asset when it comes to finding the right system and installing it in your home.
We also maintain a database of installers who have completed our training. That way, if you don’t already have an installer in mind, we can usually recommend an experienced, favorably reviewed installer in your area.
So if you’re looking to install heated floors in your home, either to complement your existing heating system or as your primary heating source, be sure to invest wisely by working with a provider that offers complete radiant heat services. You need to know that experts will be available to you after you purchase the system. Our goal is to provide the ultimate customer experience for those seeking a quality radiant heat solution. By investing in a system from Warmzone, you can rest assured that you have a team of radiant heat experts at your side.
Call us today at 888.488.9276 to talk to use about your project, or email your project information to receive a free quote (info@warmzone.com).
